
We’ve designed Envo Steel to be the solution for private pools, bathrooms, and luxury spa facilities….
No compromises:For areas that need protection against moisture, we use stainless steel for exceptional durability; however, this doesn’t affect the look or finish. The same sleek door and screen designs are available in our stainless steel solution, enabling you to select one of our 24 designs or work with our in-house team to create something truly bespoke. All our designs can be tweaked to produce arched doors and screens.
You also won’t be limited to your choice of finish. From a traditional black power coat to one of our hand-applied bronze, brass, and copper finishes, and many, many others in between, all suitable for wet environments.
When considering door hardware, we offer a wide choice for hinged, pivoting, and sliding steel doors. For sauna’s we’ll ensure suitable fixings on the steel door for a wooden handle.

Above: Door handle detail for sauna
Security:
Our steel doors can be fitted with traditional or electronic locks as required. If you require restricted access, we can supply the required hardware or ensure fixings as needed.

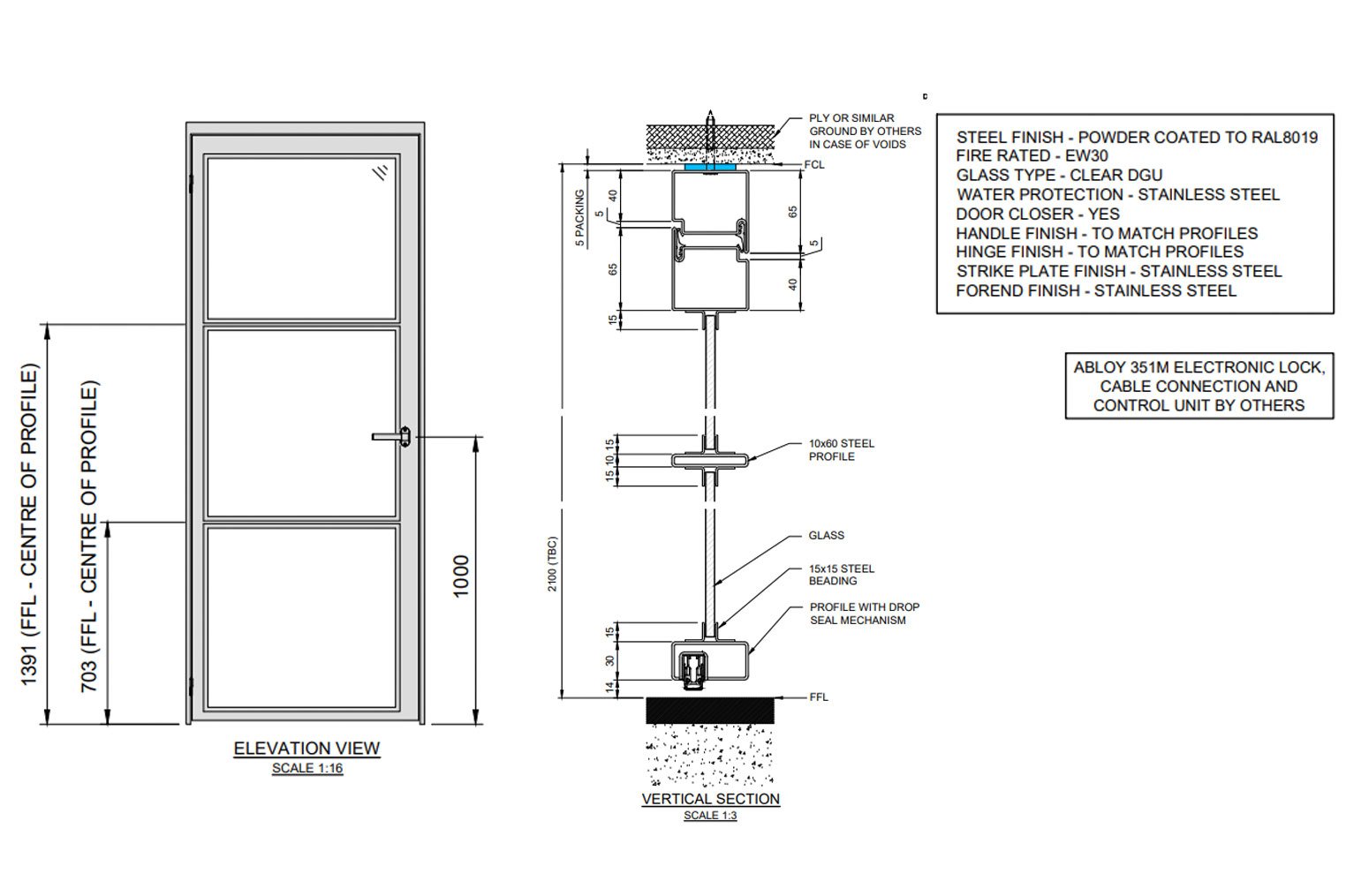
Above: Fire-rated steel door for pool and gym with electronic lock
Safety:
Our single and double hinged doors and fixed screens can be fire-rated up to EW60 in standard steel or stainless steel profiles. We also provide stainless steel door closers.
Browse a selection of our pool and spa projects below, and feel free to get in touch with the Envo team to discuss your project's needs:
Contact us at info@envo.co.uk or call us on 0208 2539342.



To find out more about our steel-glazed door systems click here.
Discover our full range of internal door solutions.